Nieuws uit Castricum: extra supermarkt op Bakkerspleintje nog geen gelopen race
En: politie waarschuwt voor inbraken via achterdeur
Hallo en welkom bij editie 180 van de Nieuws uit Castricum-nieuwsbrief. Van harte welkom ook zeven nieuwe abonnees. Na een paar lekkere dagen in Milaan ben ik weer thuis en sta ik vandaag (zondag) tussen 11:00 en 17:00 uur op de zomermarkt aan de Dorpsstraat. Je vindt mijn kraam grofweg ten hoogte van het Bakkerspleintje aan de kant van sportschool Boutique Club Karakter, waar ik graag het gesprek aan ga met lezers en mensen die Nieuws uit Castricum nog niet kennen.
De afgelopen dagen heb ik weer een uitgebreide nieuwsbrief geschreven, die je helemaal gratis en zonder reclames kunt lezen. Dat lukt mij alleen dankzij donaties van lezers. Als je Nieuws uit Castricum waardeert, help je mij door een zelfgekozen bedrag te doneren.
In deze nieuwsbrief lees je:
- een update over het plan voor een tweede supermarkt op het Bakkerspleintje
- dat de gemeente door kan met de ontwikkeling van circa 90 appartementen aan de Koekoeksbloem
- dat de politie waarschuwt na drie inbraken in twee dagen via de achterdeur
- over een gezochte jongen die duizenden euro’s gestolen heeft van een oudere mevrouw. Misschien (her)ken jij hem op de foto
Heb je deze nieuwsbrief doorgestuurd gekregen? Leuk! Je kunt je via deze link gratis abonneren om elke zondag een e-mail te ontvangen.
Steun jij mijn kritische journalistiek die je gratis kunt lezen ook? Je kunt een donatie via Tikkie overmaken of om mijn rekeningnummer vragen door te antwoorden op deze e-mail. Dank ook aan de donateurs van vorige week en veel leesplezier gewenst.
Rens Blom - onafhankelijk journalist

Politici en ondernemers stellen vragen over tweede supermarkt op Bakkerspleintje

In de afgelopen weken zijn er door verschillende ondernemers en minimaal één inwoner vragen aan de gemeente gesteld over het voornemen van Biesterbos Groep om een tweede supermarkt te realiseren op het Bakkerspleintje. Onder meer Weel Verzekeringen en Hypotheken, sinds kort in de Burgemeester Mooijstraat gevestigd, toont zich in een brief voorstander van de komst van een nog onbekende supermarkt die tegenover de Aldi moet komen. Weel vraagt de gemeente vaart te zetten achter de besluitvorming die Biesterbos Groep toestemming moet geven om verschillende winkels en kantoren te veranderen in een supermarkt.
De ingekomen brieven zijn niet onopgemerkt gebleven. VVD en PvdA hebben het college van burgemeester en wethouders (B&W) schriftelijke vragen gesteld (pdf) over het plan en de nieuwe detailhandelsvisie van de gemeente. B&W antwoordt op die vragen dat de nieuwe detailhandelsvisie in oktober klaar moet zijn en in november door de raad besproken kan worden.
Biesterbos Groep heeft een paar maanden geleden een aanvraag omgevingsvergunning ingediend om voor de supermarkt de Xenos-winkel en naastgelegen kapperszaak samen te voegen met het achtergelegen, voormalige Rabobank-kantoor. Dat kantoor ondergaat momenteel een verbouwing omdat de gemeente er na de zomer tientallen Oekraïense vluchtelingen wil huisvesten. Biesterbos Groep heeft - slim - vorig jaar het destijds leegstaande kantoor overgenomen van een dochterbedrijf van Rabobank, en heeft nu dus een interessante onderhandelpositie met de gemeente over de toekomst van het pand.
Laden, lossen en parkeren
Op vragen van PvdA wat B&W vindt van de toevoeging van een tweede supermarkt op het Bakkerspleintje, volgt - integraal - het volgende antwoord: . ‘Momenteel is de omgevingsvergunning in behandeling. De bestemming detailhandel is passend, echter laden, lossen en parkeren zijn issues die verder worden uitgewerkt. De besluitvorming m.b.t. de aanvraag zal na het zomerreces plaatsvinden.’
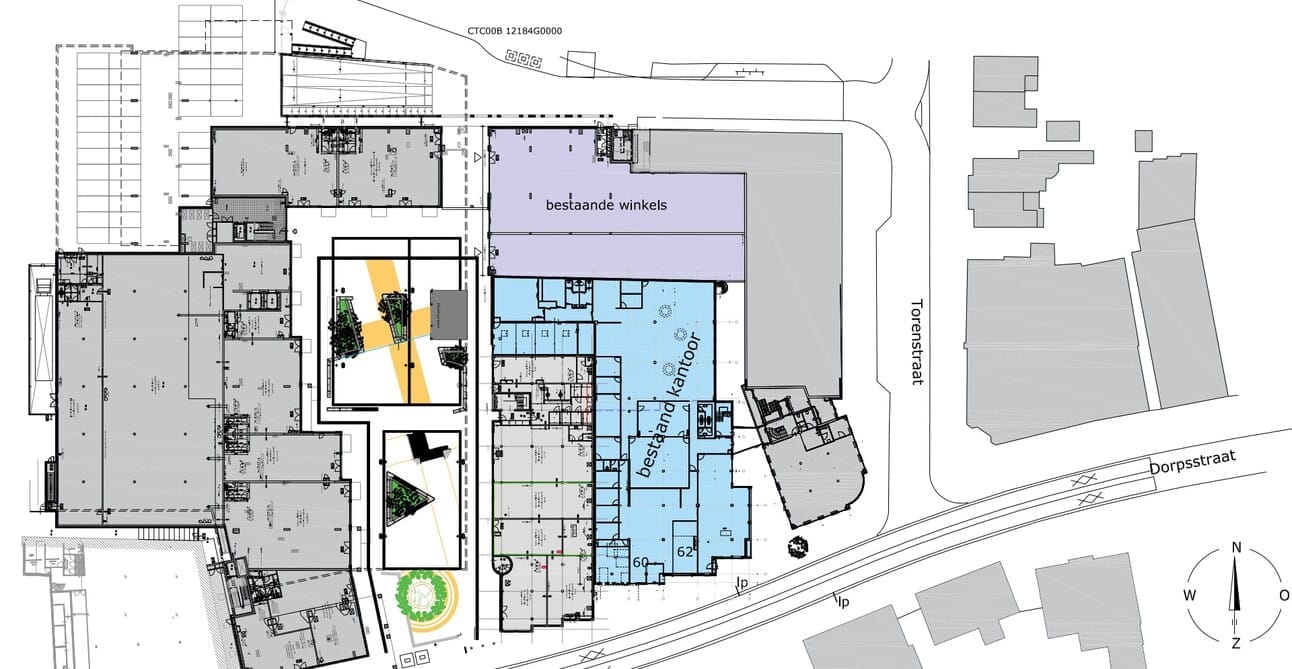
Onderstaande afbeeldingen, afkomstig uit de aanvraag omgevingsvergunning en destijds als eerste gedeeld in deze nieuwsbrief, maken duidelijk hoe Biesterbos Groep de supermarkt wil vormgeven. De paarse ruimte is nu winkelruimte, de blauwe ruimte het Rabobank-kantoor.

De winkels en het Rabobank-kantoor moeten samen veranderen in één supermarkt van circa 1500 vierkante meter. Aan de voorkant, dus aan de Dorpsstraat, komen dan twee aparte winkelruimtes. De commercieel directeur van Biesterbos Groep antwoordde destijds op mijn vragen dat Xenos en de kapperszaak hun ruimtes huren van Biesterbos Groep en dat het bedrijf huurders niet kan verplichten om hun ruimtes te verlaten of te verhuizen.

Wat ik interessant vind
Ik vind het interessant dat B&W nog niet overtuigd is van Biesterbos Groep’s verhaal over de bevoorrading van de supermarkt en de parkeergelegenheid voor bezoekers. Het bedrijf heeft bij de aanvraag omgevingsvergunning aangegeven dat laden en lossen kan bij de ingang van de autoparkeergarage van het Bakkerspleintje, waar vrachtwagens nu onder meer Xenos bevoorraden. Voor de supermarktbezoekers die met de auto komen, biedt het Bakkerspleintje voldoende parkeergelegenheid, zo beklemtoont Biesterbos in een studie die is meegestuurd bij de aanvraag omgevingsvergunning.
Aangezien B&W ‘verdere uitwerking’ van deze aandachtspunten vraagt, ben ik benieuwd hoe Biesterbos Groep de zorgen van de gemeente gaat proberen weg te nemen. Na het zomerreces volgt dus een besluit van B&W over het wel of niet toestaan van een tweede supermarkt op het Bakkerspleintje.
Appartementen aan de Koekoeksbloem stap dichterbij

Een opsteker voor het college van burgemeester en wethouders: de gemeenteraad heeft ingestemd met het ruimtelijk kader voor nieuwbouw aan de Koekoeksbloem. B&W en Kennemer Wonen kunnen nu door met het ontwikkelen van concrete plannen voor twee appartementencomplexen op de plaats van de voormalige Montessorischool.
De school is een paar maanden geleden voor circa tweehonderdduizend euro door de gemeente verbouwd om er ongeveer 20 statushouders te huisvesten, die er naar verwachting tot eind 2025 of begin 2026 kunnen wonen. Dan gaat het pand tegen de vlakte en kan de bouw starten van een complex met circa 46 sociale huurappartementen en een complex met circa 43 middenhuur appartementen. Voor de complexen komt een parkeerterrein voor bewoners en bezoekers.
Een deel van de omwonenden heeft - zonder resultaat - fel geprotesteerd tegen de komst van de twee appartementencomplexen. Bij de gemeenteraad is gelobbyd om de complexen minder hoog te maken, met dus minder appartementen in totaal. Een paar weken geleden schreef ik hierover:
‘Het ene complex krijgt volgens het ruimtelijk concept vijf bouwlagen, waar het andere complex gaat bestaan uit zes bouwlagen. Geen koopwoningen en ook geen dure huurwoningen. De betaalbare woningbouw is mogelijk omdat niet een winst gedreven ontwikkelaar maar de gemeente eigenaar is van de grond. Met circa 90 woningen is het nog naamloze plan aan de Koekoeksbloem één van de grootste nieuwbouwprojecten in Castricum. Sommige omwonenden hebben daar moeite mee, merkte ik op inspraakmomenten op het gemeentehuis. Ze vinden het project te massaal voor hun buurt, willen niet naar twee complexen en een grote parkeerplaats kijken en vrezen dat de extra auto’s tot te veel drukte in de buurt gaan leiden.’
De gemeente meldt deze week: ‘Nu de gemeenteraad akkoord is gegaan met het ruimtelijk kader, werkt Kennemer Wonen de plannen verder uit tot een ontwerp. In samenwerking met de gemeente wordt ook een wijziging van het omgevingsplan voorbereid. Omwonenden kunnen in het vervolgproces hun input geven op het ontwerp van zowel het gebouw als de buitenruimte. Deze input wordt verzameld en meegenomen in de verschillende schetsontwerpen voor de inpassing van het woningbouwprogramma op deze locatie.’
Politie waarschuwt voor inbrekers die achterdeuren in Castricum forceren

Opgelet: er is deze week in twee dagen tijd drie keer ingebroken in de buurt van de Duinakker - een villawijk op Duin en Bosch, in Castricum. Bij alle drie de inbraken is er vlak onder het slot van de achterdeur geboord, waarschuwt de politie. ‘Het lijkt erop dat de inbraak makkelijker is als de sleutel aan de binnenzijde nog in het slot zit.’ De precieze werking is mij als niet-inbreker niet duidelijk en de politie geeft ook geen uitleg.
Bovenstaande foto is in ieder geval gedeeld door de politie en betreft een achterdeur aan de Duinakker, waar op 18 juli ‘s morgensvroeg een inbreker op heterdaad betrapt werd. De politie zette verschillende eenheden en een helikopter in, maar de inbreker wist te ontsnappen. Via deze link lees je meer informatie over de verdachte en kun je - als je in de buurt woont - bijvoorbeeld beelden van je beveiligingscamera of slimme deurbel terugkijken.
Het advies van de politie aan Castricummers? Haal de sleutel uit de binnenkant van het slot.
➡️Lees hier meer tips van de politie om het inbrekers moeilijker te maken

Wie (her)kent de jongen die duizenden euro’s stal van een 82-jarige Castricumse vrouw?

De politie heeft herkenbare foto’s verspreid van een jongen die in mei een 82-jarige mevrouw uit Castricum heeft opgelicht. Hoe ging dat in zijn werk? Nadat de mevrouw gebeld is door een vrouw die zich voordoet als een medewerker van de ING-bank en waarschuwt voor een verdachte situatie met haar pinpas, haalt deze jongen een paar uur later de bankpas bij de mevrouw thuis op. De mevrouw gelooft na een telefoongesprek van 3,5 uur (!) met de vrouw namelijk dat de jongen voor de deur een bankmedewerker is en geeft haar bankpas en pincode mee.
Een paar uur later pint de jongen meermaals in Castricum, namelijk bij winkelcentrum Geesterduin en aan de Dorpsstraat. Pinautomaten hebben hier foto’s van gemaakt. In totaal neemt de oplichter 4200 euro op.
Omdat de jongen maanden later nog steeds spoorloos is, deelt de politie herkenbare foto’s in de hoop tips te ontvangen over wie hij is. Die hoop deel ik, vandaar dit stukje in de nieuwsbrief. Op de website van de politie vind je meer informatie en foto’s van de jongen.

❓️ Poll van de week
In de vorige nieuwsbrief las je een stukje over grasaren, een grassoort die gevaarlijk is voor honden en katten. De gemeente maait bermen, waar grasaren in staan, minder vaak om de natuur meer ruimte geven. Sommige hondeneigenaren waarschuwden mij voor de risico’s van deze beslissing, waardoor ik nieuwsgierig werd naar in hoeverre dit speelt onder inwoners. De meningen lopen nogal uiteen, maar tientallen mensen zeggen er dus last van te hebben. Hieronder licht ik drie boeiende reacties uit.
Grasaren zijn gevaarlijk voor honden en katten. Heb jij er last van?
Aantal stemmen: 135
🟨🟨🟨⬜️⬜️⬜️ Ja, ik ondervind er last van met mijn hond/kat (47)
⬜️⬜️⬜️⬜️⬜️⬜️ Niet direct, maar ik ken iemand die er last van heeft (10)
🟩🟩🟩🟩🟩🟩 Nee, ik ondervind hier geen last (78)
Ja: “Bij onze hond zijn al eens onder narcose grasaren verwijderd omdat ze bleef kuchen en niesen. De grasaren zetten zich namelijk vast vanbinnen en komen daar niet vanzelf meer uit. We trekken zelf tijdens het lopen met de honden vaak grasaren weg op risicovolle plaatsen.”
Ja: “Wij onderzoeken onze honden na iedere wandeling op teken en grasaren, dat hoort nu eenmaal bij het seizoen. Tegelijkertijd ben ik een natuurliefhebber en ben ik een grote voorstander van het huidige (niet) maaibeleid. Wij genieten van de grassen, bermbloeiers, insecten en vlinders.
Nee: “Hoe vervelend ook voor hondeneigenaren; deze kunnen alert zijn op waar zij hun hond uitlaten. Ik ben blij dat de gemeente kiest voor natuurvriendelijk maaibeleid, waardoor insecten maar ook bijvoorbeeld egels een betere kans hebben.”
Poll van deze week
In deze nieuwsbrief las je een update over het plan van Biesterbos Groep om een extra supermarkt te realiseren op het Bakkerspleintje. Die supermarkt moet pal tegenover de Aldi komen. Het is nog niet duidelijk of de gemeente een extra supermarkt gaat toestaan, laat staan welke supermarktketen het pand op het Bakkerspleintje wil betrekken. Ik ben wel benieuwd waar jij behoefte aan hebt. Een supermarkt die nog niet in Castricum actief is of een verhuizing van een bestaande supermarkt? Ik hoor het graag via onderstaande poll.
Als nieuwe supermarkt op het Bakkerspleintje wil ik:
Albert Heijn DekaMarkt Lidl Jumbo Dirk Plus Vomar Spar
Kort nieuws:
- Goed nieuws: drie minderjarigen uit Heerhugowaard en Alkmaar hebben zich deze week bij de politie gemeld omdat ze gezocht werden voor vermeende betrokkenheid bij een zware dubbele mishandeling op treinstation Castricum, net voor de kerst. De politie deelde een week geleden terug foto’s van de jongens, waarop hun gezichten wazig waren gemaakt. De jongens kregen een week om zich op het politiebureau te melden, anders zou de politie herkenbare foto’s delen. Daar hadden de verdachten duidelijk geen zin in. De politie arresteerde eerder al drie andere verdachten, waarvan de eerste onlangs is veroordeeld tot bijna drie jaar celstraf.
- De gemeente kan door met de voorbereidingen voor de bouw van een Integraal Kindcentrum (IKC) voor de Cunera. Dit IKC komt aan de Vondelstraat, op de plek van de huidige Cunera-basisschool. De gemeenteraad heeft ingestemd met een vereist raadsbesluit. Voor de gemeente liggen er nog wat uitdagingen, bijvoorbeeld het kiezen van een locatie waar een tijdelijke school geplaatst kan worden om leerlingen les te geven als er een nieuwe school gebouwd wordt. De gemeente stelt twee opties voor: op het plantsoen tegenover de tennisvereniging van Bakkum of op het plantsoen op de hoek van de Brakersweg en Van Speykkade, in Castricum.
- Omwonenden en sympathisanten van die tweede locatie zijn een online petitie gestart om duidelijk te maken dat zij de tijdelijke Cunera níet op de hoek van de Brakersweg en Van Speykkade willen. Deze petitie heeft op moment van schrijven ruim 200 stemmen. Op Facebook lees ik overigens een hoop ongefundeerde claims rondom deze petitie, bijvoorbeeld van mensen die stellen dat het tijdelijke onderkomen voor tien jaar is (de gemeente raamt op maximaal twee jaar) en dat er woningen komen (nee). Mijn advies: verdiep je in een onderwerp voordat je een petitie tekent, zodat je weet waar je je mening over geeft.
- Stichting Historisch Limmen wil graag het leegstaande, wegkwijnende pand naast zijn eigen pand op de hoek van de Zuidkerkenlaan/Schoolweg erbij betrekken. Budget heeft de vereniging niet, dus is de gemeente - eigenaar van het monumentale pand - gevraagd of het pand gratis te gebruiken is. Daar durft het college nu geen uitspraken over te doen, want er volgt op dit moment een onderzoek naar de toekomst van het pand. Het college is wel van plan om het pand wind- en waterdicht te maken om verder verval tegen te gaan, maar geeft in antwoord op vragen van D66 niet aan wanneer die werkzaamheden moeten aanvangen. Het pand raakt dus in steeds slechtere staat, wat de volgende opmerking van het college extra grappig maakt: ‘Het pand wordt momenteel tijdelijk gebruikt als atelierruimte. Deze gebruiker heeft vooralsnog geen overlast gemeld.’
- Het Bakkerspleintje heeft er - vooralsnog tijdelijk - een winkel bij. In het leegstaande pand rechts van Vivant start De Kleine Eekhoorn, een tweedehands kinderkledingwinkel. Lees je deze nieuwsbrief vandaag, dus op zondag? Dan kun je tussen 11:00 en 16:00 uur naar de opening van de winkel. Slim gekozen, zo tijdens de zomermarkt, als je het mij vraagt. De winkel wil zich bij genoeg animo voor langere tijd vestigen op het plein.
- Volgende week zondag, dus op 28 juli, vindt vanaf 13:00 uur weer het Uit Je Bak-festival plaats in het Willem de Rijkepark. De entree is - dankzij sponsoren - gratis en er zijn muzikale optredens van verschillende artiesten, aangevuld met etenskraampjes en een kinderhoek. Kijk hier voor het programma.
- Burgemeester Ben Tap heeft een huis gekocht in Limmen. Hij gaat daar samen met zijn vrouw en twee oudere kinderen wonen. Tap woont nu nog in Heemskerk en gaf bij zijn start als burgemeester van Castricum, ongeveer honderd dagen terug, aan te willen verhuizen naar één van de kernen van de gemeente. Dat is dus Limmen geworden, volgens Tap omdat het gezin daar ‘een mooi huis’ kon kopen. ‘Maar de andere vier kernen van Castricum zijn mij natuurlijk even lief.’
Tot volgende week
Dank weer voor je aandacht, hopelijk ben je weer helemaal op de hoogte van het échte lokale nieuws. Ik maak deze nieuwsbrieven al 180 weken helemaal gratis, met als doel zoveel mogelijk Castricummers en andere geïnteresseerden geheel onafhankelijk te informeren. Als je vindt dat ik belangrijk werk doe, kun je mij steunen door een donatie via Tikkie over te maken of door om mijn bankrekeningnummer te vragen. Je helpt mij uiteraard ook door deze nieuwsbrief door te sturen naar bekenden die er wellicht interesse in hebben. Heb je vragen, dan kun je simpelweg even antwoorden op deze e-mail.

Een mooie week gewenst,
groeten Rens