Nieuws uit Castricum: over subsidies en een volle agenda
En: er komt een publiek toilet op het strand
Onafhankelijk journalist en eigenaar van Nieuws uit Castricum. Castricummer sinds 1997.
En: er komt een publiek toilet op het strand
En: sociale bezuinigingen lijken uitgesteld te worden
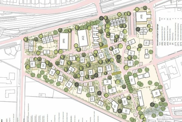
En: Maranathakerk verandert in appartementen met zorgpraktijk
En: veel kort nieuws over de gemeente
En: de fietsenstalling aan het strand is wéér opgelapt
En: de Kustbus stopt waarschijnlijk ook bij de Santmark
En het Hurkmans-pand heeft een nieuwe eigenaar
En nog veel meer nieuws
En: tienduizenden euro's minder subsidie voor deze organisaties
En nog veel meer gratis nieuws!
En: een doorstart voor restaurant Vrij
En: laat je oude tuintegels ophalen door de gemeente